









Land Parcel
Towers
Floors
Config
Carpet Area
RERA NO.
Possession Status
Target Possession
RERA Possession
Litigation
Sukhwani Tathawade Project Overview
Sukhwani Sepia will be constructed on 7.81 acres of land parcel, 9 towers with 3B+G+22 floors having 2 BHK, 3 BHK premium residences.
Sukhwani Sepia location
Project is Near Indira College Road, Santhosh Nagar, Tathawade, Pune with -
Bhumkar Chowk - 2.0km
Dange Chowk - 3.6km
D-Mart - 4.2km
Sukhwani Sepia Tathawade Project Amenities
First is Internal amenities -
Vitrified Tiles, Modular kitchen, Kitchen Platform, SS Sink, Powder Coated Aluminum Sliding Windows, Anti skid tiles, Piped gas, Exhaust fan, CCTV, Fire fighting system, Generator back up, Video door phone, Gas leak Detector & many more
Sukhwani Constructions Tathawade Amenities
Project has 30+ luxurious amenities with likes of -
Club house
Multipurpose court
Gymnasium
Swimming pool
Kids play area & Many More
Sukhwani Constructions Sepia Tathawade Parking -
Project has one type of car parking facility -
1) Basement
Sukhwani Sepia Possession -
Rera Possession - December 2027
Target Possession - June 2026
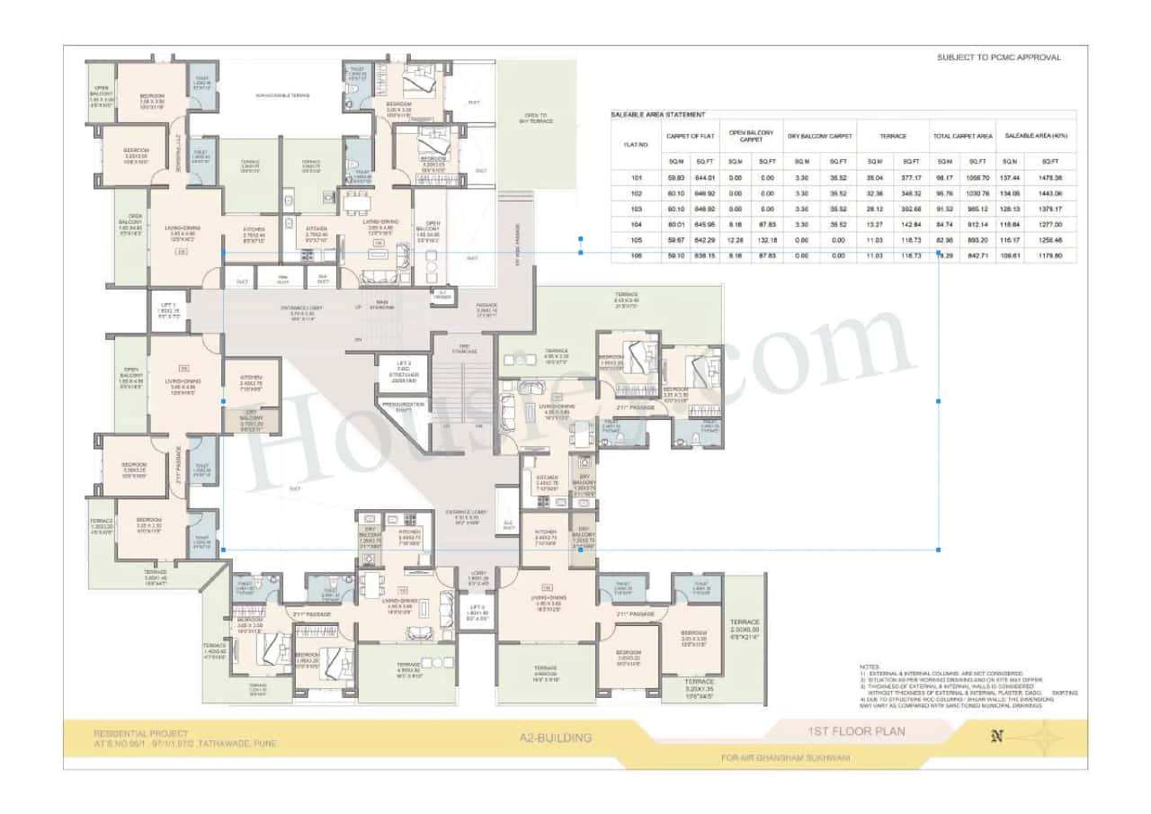
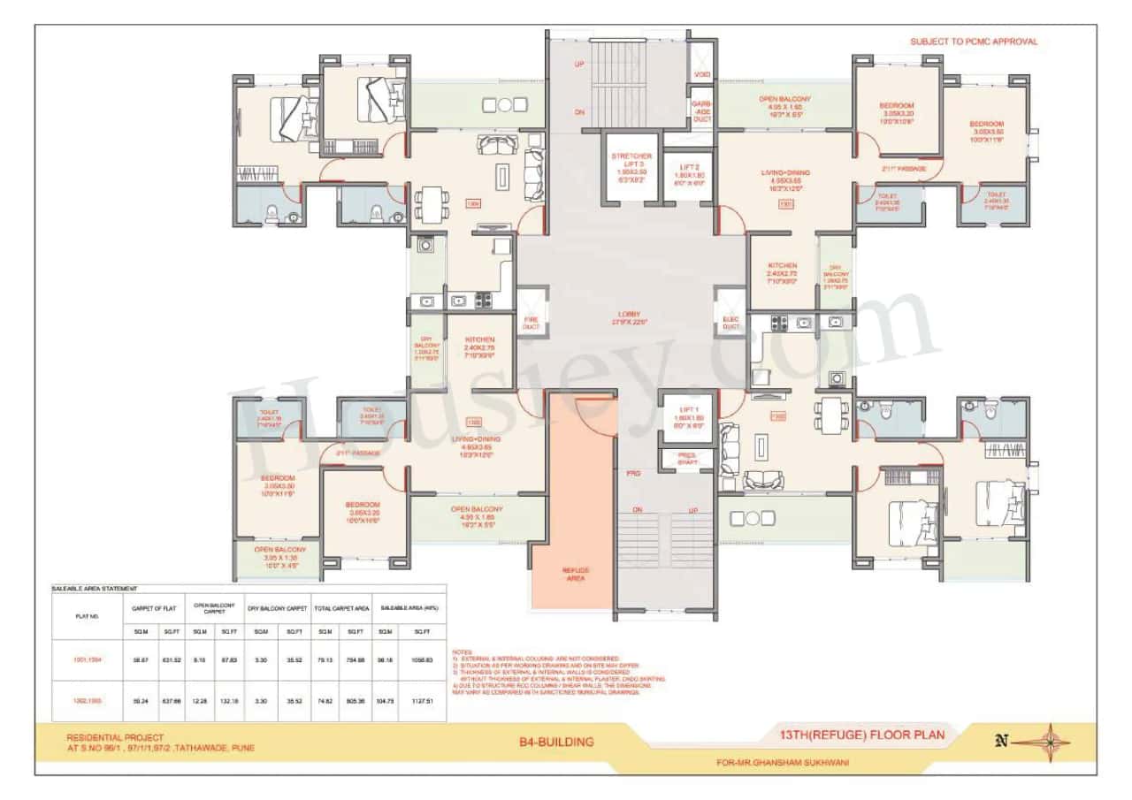
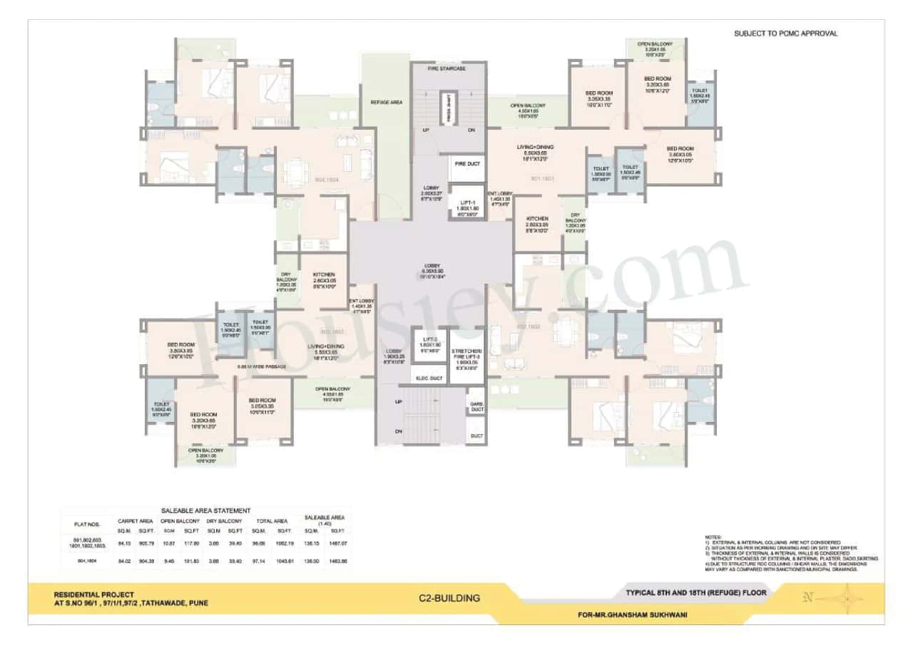
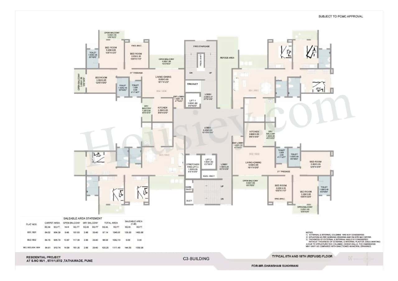
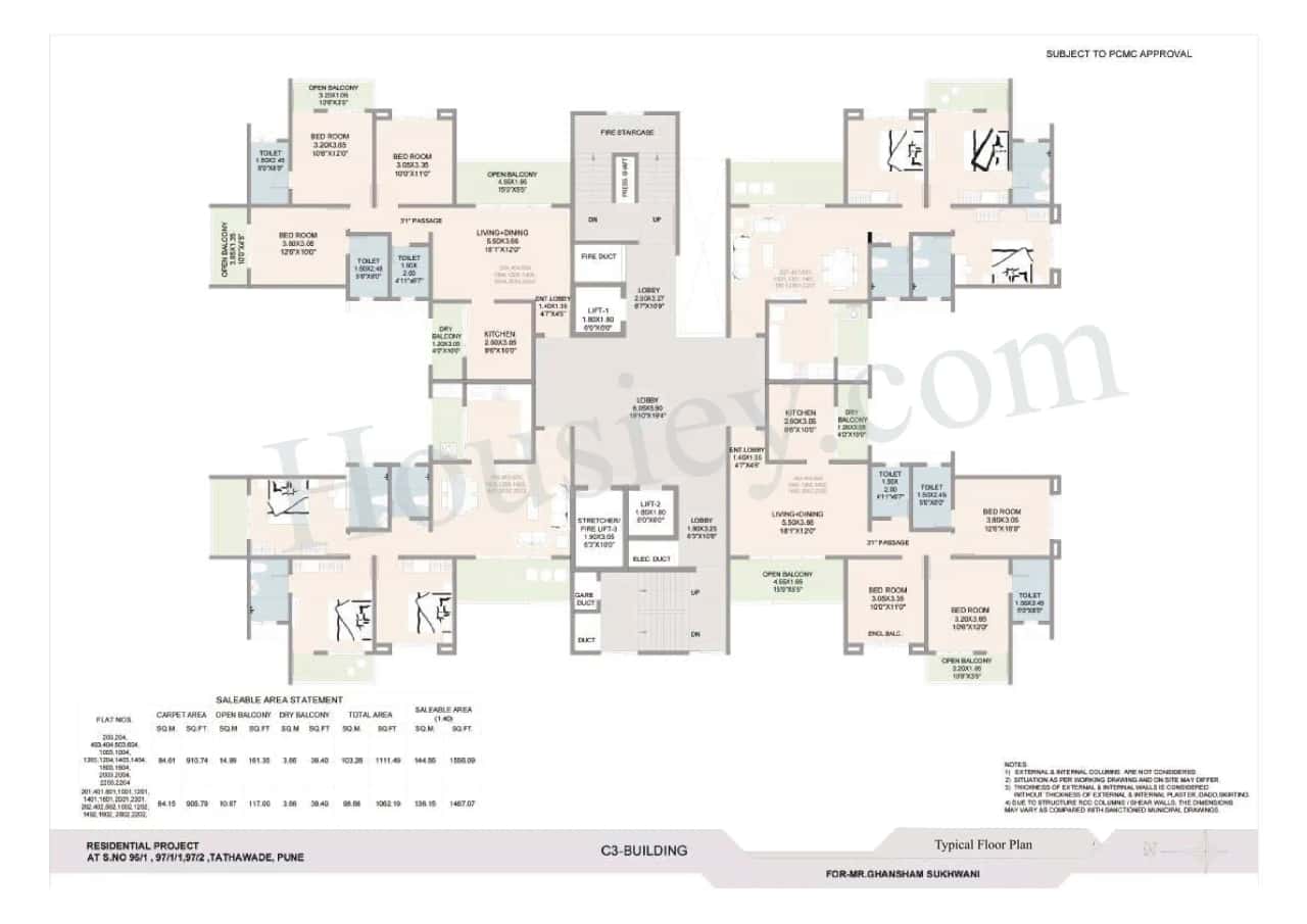
Carpet Area & Floor Plan
Sepia project has 2BHK, 3BHK premium residences with -
2BHK - (755 to 805) sqft
3BHK - (1057 to 1145) sqft
Sukhwani Sepia floor plan
Tower floor plan will have 6 flats 2 lifts & 2 staircases on each floor
Maintenance -
Sukhwani Sepia Pune Project maintenance varies with the configuration and the carpet area which are as follows-
2BHK - (3000 - 3200) per month
3BHK - (4200 - 4600) per month
Sukhwani Sepia project sample flat is ready to view at the site.
Sukhwani Sepia Prices & its details can be found in the price section & Sukhwani Sepia Tathawade brochure can be downloaded from the link mentioned below. Project has been praised by the home buyers & Sukhwani Constructions Tathawade review is 4 out of 5 from over all the clients who have visited the site.
Near Indira College Road, Santhosh Nagar, Tathawade, Pune

Pros
Cons
Video Door Phone
Vitrified Tiles
Granite Kitchen Platform
Stainless Steel Sink
Gas Leak Detector
Exhaust Fan
CCTV Camera
+3 More
Swimming Pool
Club House
Kids Play Area
Jogging Track
Multi Purpose Court
Senior Citizen Area
Net Cricket
Tennis Court
Skating Rink
Basketball Court
Amphitheater
Yoga Zone
Meditation Zone
Banquet Hall
Gazebo
+3 More
















| Carpet Area | All Inc. Price (Inc. of Taxes & Charges) | Min Downpayment (Inc. Taxes) | Parking | Unit Plan |
|---|---|---|---|---|
755 sqft | 97.00 Lacs All In | 15.00 Lacs | 1 | ![]() |
805 sqft | 1.03 Cr All In | 15.00 Lacs | 1 | ![]() |

Is there any litigation against this proposed project:
NoSukhwani Constructions

1 CityLocations
Pune

--1724848588311-img.webp&w=1280&q=75)

736 - 1040 sqft
Abhinav Group
Developer
--1729667837944-img.webp&w=1280&q=75)





732 - 829 sqft
Millennium Developers
Developer








Housiey Legal: Free Real Estate Legal Consultation
Get Expert Advice on RERA, Builder Refunds, Area Mismatch, Stuck Projects & More - at No Cost!