Last updated: Mar 16, 2026
























Land Parcel
Towers
Floors
Config
Carpet Area
RERA NO.
Possession Status
Target Possession
RERA Possession
Litigation
Marathon Dombivli East Project Overview
Marathon Nextown will be constructed on 14 acres of land parcel, 8 towers with G+19/23 floors having 1 BHK, 2 BHK, 2.5 BHK premium residences.
Marathon Nextown location
Project is Off Kalyan-Shil Road, Padle Gaon, Dombivli East, Mumbai with -
Kalyan Shil Road - 1.2km
Xperia Mall - 3.1km
Kalyan Phata Circle - 3.1km
Marathon Nextown Dombivli East Project Amenities
First is Internal amenities -
Vitrified Tile, Granite Kitchen, Acrylic based distemper, Stainless steel sink, Anodized coated aluminium window, Anti skid flooring & many more
Marathon Group Dombivli East External Amenities
Project has 40+ amenities with likes of -
Swimming Pool
Club house
Multipurpose sports
kids play area
Jogging park
Basketball zone & Many More
Marathon Group Nextown Dombivli East Parking -
Project has two type of car parking facility -
1) Ground
2) Stack
Marathon Nextown Possession -
Rera Possession - December 2028
Target Possession - April 2025
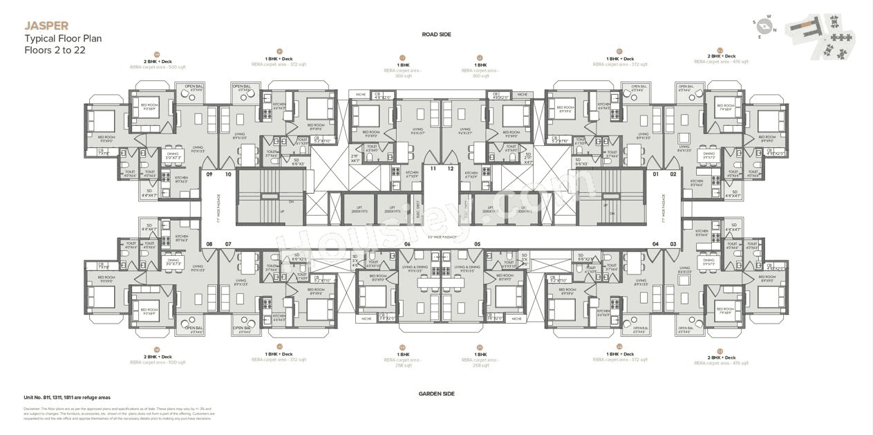
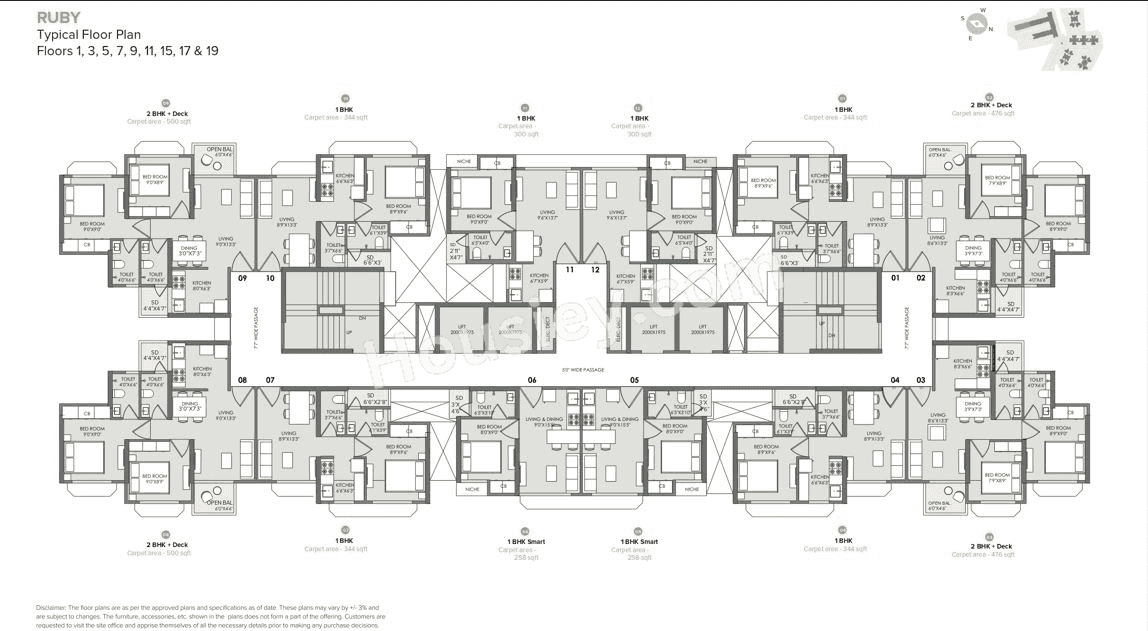
Carpet Area & Floor Plan
Nextown project has 1BHK, 2BHK premium residences with -
1BHK - (372 sqft
2BHK - (476 to 500) sqft
Marathon Nextown floor plan
Tower floor plan will have 12 flats 4 lifts & 2 staircases on each floor
Maintenance -
Marathon Nextown Mumbai Project maintenance varies with the configuration and the carpet area which are as follows-
1BHK - Rs 2600 per month
2BHK - Rs (3300 - 3500) per month
Nextown Dombivli Eart project sample flat is ready to view at the site.
Nextown Prices & its details can be found in the price section & Marathon Nextown Dombivli East brochure can be downloaded from the link mentioned below. Project has been praised by the home buyers & Marathon Group Dombivli East review is 4 out of 5 from over all the clients who have visited the site.
Off Kalyan-Shil Road, Dombivli East, Mumbai

Pros
Cons
Vitrified Tiles
Granite Kitchen Platform
Stainless Steel Sink
Club House
Kids Play Area
Jogging Track
Multi Purpose Court
Squash Court
Box Cricket
Basketball Court
Banquet Hall
Indoor games
Yoga Deck
Badminton Court
Gymnasium




| Carpet Area | All Inc. Price (Inc. of Taxes & Charges) | Min Downpayment (Inc. Taxes) | Parking | Unit Plan |
|---|---|---|---|---|
372 sqft | 36.99 Lacs All In | 6.00 Lacs | 5 lacs | ![]() |

Is there any litigation against this proposed project:
Yes| Court Name | City | Case Type | Petition | Case Number | Year | Case Status |
|---|---|---|---|---|---|---|
| THANE CITY CIVIL COURT | Civil | Arbitration Petition | M A 42 OF 2013 | 2013 |
Marathon Nextown Layout Plan
Marathon Nextown Legal Title Report
Marathon Nextown Commencement Certificate
Note: You can download more detailed documents by following this link
Marathon Group

3 CitiesLocations
Mumbai City, Mumbai suburban, Thane

323 - 372 sqft
Runwal Enterprises
Developer

412 - 796 sqft
Runwal Enterprises
Developer
344 - 828 sqft
Runwal Enterprises
Developer


323 - 522 sqft
Runwal Enterprises
Developer
288 - 680 sqft
Marathon Group
Developer
395 - 811 sqft
Provident Housing
Developer

422 - 626 sqft
Kapleshwara Group
Developer




263 - 837 sqft
Haware Properties
Developer



Housiey Legal: Free Real Estate Legal Consultation
Get Expert Advice on RERA, Builder Refunds, Area Mismatch, Stuck Projects & More - at No Cost!